Jardins da Brava
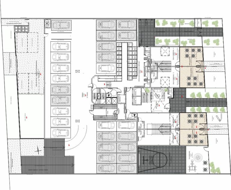
Apresentamos o Jardins da Brava, um empreendimento com 48 unidades distribuídas em 01 torre de 15 pavimentos. Oferecemos apartamentos com 02 a 04 suítes, variando de 129,80 m² a 215,65 m² de área privativa. As unidades contam com varanda aberta com churrasqueira a carvão, lavabo social e infraestrutura completa para automação e climatização. A estrutura do condomínio inclui 02 pavimentos de lazer e 03 pavimentos de garagens, com 03 ou 04 vagas por apartamento.
Jardins da Brava na Praia Brava Preço
Entendemos que a decisão de investimento exige clareza sobre o produto. O Jardins da Brava oferece apartamentos com áreas privativas que vão de 129,80 m² a 215,65 m². Cada unidade foi planejada para oferecer 02 a 04 suítes, além de 03 ou 04 vagas de garagem. O projeto se destaca pela varanda com churrasqueira a carvão e pela infraestrutura de lazer completa no rooftop, garantindo conforto e exclusividade.
Apartamentos Jardins da Brava
Os apartamentos do Jardins da Brava foram projetados com foco na funcionalidade e acabamento de alto padrão. As metragens variam conforme a localização na torre, oferecendo opções de 129,80 m² até 215,65 m². Todas as unidades possuem living integrado, lavabo social, infraestrutura para automação e persianas integradas. A distribuição interna prevê 02 a 04 suítes e 03 ou 04 vagas de garagem.
| Tipo de imóvel | Valor | Metragem | Dormitórios | Suítes | Vagas |
| Apartamento | R$ 6.000.000,00 | 182,10 m² | Consulte | 4 | 4 |
Interessado no lançamento?
Preencha seus dados para contato
Plantas Jardins da Brava
Faça o download das plantas em alta resolução através do arquivo digital em “pdf”:
Ficha Técnica
Condomínio Jardins da Brava
O lazer do Jardins da Brava está concentrado em dois pavimentos, incluindo o rooftop, pensado para o bem-estar e convívio. A área comum conta com piscina adulto e infantil, SPA com sala de massagem e hidromassagem, sauna úmida, e espaços gourmet. O sistema de segurança inclui monitoramento por câmeras e controle de acesso por biometria. A sustentabilidade é reforçada pela captação de água da chuva e uso de painéis solares para áreas comuns.
- Piscina Adulto com Espelho D’água e Piscina Infantil
- SPA com Sala de Massagem e Hidromassagem, Sauna úmida
- Espaço Fitness e Espaço Fitness ao ar Livre
- Salão de Festas, Espaço Gourmet, Pizza Place, Sala de Jogos e Pub Wine
- Sistema de monitoramento por câmeras e controle de acesso por biometria

Construtora AS.RAMOS EMPREENDIMENTOS Jardins da Brava Praia Brava Itajaí SC
A AS.RAMOS EMPREENDIMENTOS atua no mercado de construção civil desde 1996, com foco em segmentos residencial, comercial e industrial. Sua trajetória em Santa Catarina é marcada pela gestão de obras de alto padrão, entregando projetos com eficácia, inovação e qualidade. A construtora prioriza a rentabilidade para o investidor, garantindo solidez na execução dos empreendimentos.
Lançamento Jardins da Brava Itajaí SC
O Jardins da Brava está situado na Praia Brava, um dos endereços mais valorizados de Itajaí, a apenas 150 metros do mar. A região oferece infraestrutura completa com fácil acesso a centros comerciais como o BRAVAMALL Shopping, além de proximidade com Balneário Camboriú. Investir aqui significa posicionar seu ativo em uma área de constante desenvolvimento e alta liquidez no litoral catarinense.
Características do empreendimento
Qual a localização do Jardins da Brava?
O empreendimento está localizado na Rua Delfim Mário de Pádua Peixoto, número 1080, no bairro Praia Brava, em Itajaí, Santa Catarina, a 150 metros da orla.
Qual a tipologia do Jardins da Brava?
O Jardins da Brava oferece apartamentos com 02 a 04 suítes, com áreas privativas que variam de 129,80 m² a 215,65 m².
Qual o design do Jardins da Brava?
O design foca em áreas sociais integradas, varandas abertas com churrasqueira a carvão e infraestrutura de alto padrão, incluindo esquadrias em PVC e rebaixamento de gesso em todo o apartamento.
Qual o público para comprar esse Jardins da Brava?
O público-alvo são investidores e moradores que buscam um imóvel de alto padrão em uma localização premium no litoral de Santa Catarina, com foco em lazer e conforto.
Quais os motivos para investir no Jardins da Brava?
Os motivos incluem a localização privilegiada na Praia Brava, a qualidade construtiva da AS.RAMOS EMPREENDIMENTOS e a infraestrutura de lazer completa, que asseguram valorização patrimonial.
Quantas unidades compõem o empreendimento?
O Jardins da Brava é composto por 48 apartamentos distribuídos em uma torre de 15 pavimentos.
Quantas vagas de garagem são oferecidas por unidade?
As unidades são entregues com 03 ou 04 vagas de garagem.
O empreendimento possui infraestrutura para veículos elétricos?
Sim, há infraestrutura individual para carregamento de veículo elétrico nas garagens.
Quais são os diferenciais de acabamento nas unidades?
Os apartamentos contam com manta de atenuação acústica entre lajes, persianas integradas com automatização e infraestrutura para sistema de recirculação de água quente.
O condomínio oferece áreas de lazer no rooftop?
Sim, o rooftop concentra áreas como piscina adulto e infantil, SPA, sauna, e espaços gourmet, além de fitness ao ar livre.










